搜房源
发布信息
服务热线:15601084512

客服微信>>

手机站 北京 天津 河北 辽宁 山东 其他站 发布信息

江西厂库房网> 萍乡厂房出租>安源厂房出租

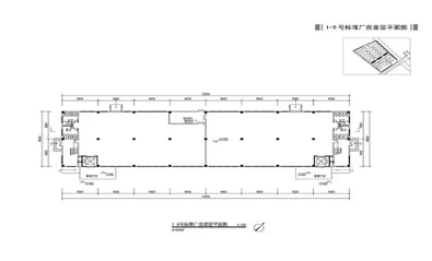
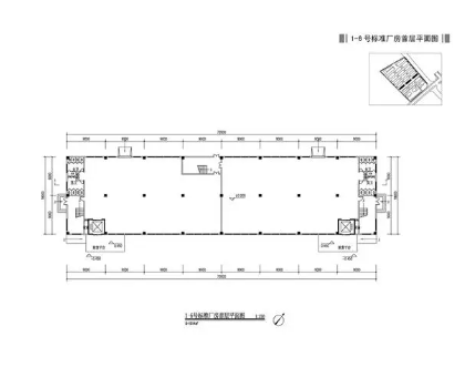
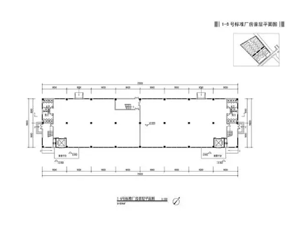
萍乡安源1560平米标准框架厂房租售中

编号:131094

区域:

萍乡- 安源

类别:

厂房出租

占地面积:

0平米

价格:

面议

建筑面积:

1600平米

车间面积:

办公面积:

柱网跨度:

层高:

现配电容量:

分割面积:

地址:

萍乡经济开发区

浏览:

孙先生

详细信息

本人厂房在萍乡安源区 地理位置优越 经济开发区附近‌‌ 保证两证齐全!并且厂房可租可售 大小面积都有!买厂房最高可按揭50%。如有产业转移的企业请来电咨询谢谢!!
厂房首创双拼、独栋国际标准厂房,彰显企业形象。底高为4.8米,2、3层高为3.9,满足大型设备空间要求。花园式厂房,营造低碳绿色环境。主打户型800--1500平方米,可为企业量身定制。

图片展示

品牌企业

相关站点

安源厂房出租

安源工厂出租

安源厂库房出租

安源库房出租

安源仓库出租

安源冷库出租

安源保鲜库出租

安源恒温库出租

安源高台库出租

安源平库出租

安源综合楼出租

安源土地出租

安源场地出租

安源建设用地出租

安源工业用地出租

关于本站- 广告投放- 联系我们- 版权隐私- 免责申明- 意见反馈 返回顶部

版权所有:北京万汇优企科技有限公司 未经授权禁止转载、摘编、复制或建立镜像,如有违反,追究法律责任.

电话:010-56877550

京ICP备14014070号-6